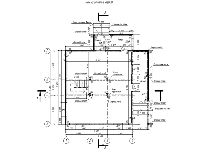
Фундамент — монолитный ж/б
Несущие стены — SIP панель (174мм)
Покрытие — битумная или металочерепица
Наружная отделка — штукатурка, облицовочная плитка, природный камень
+7 (961) 223-27-77
г. Новосибирск
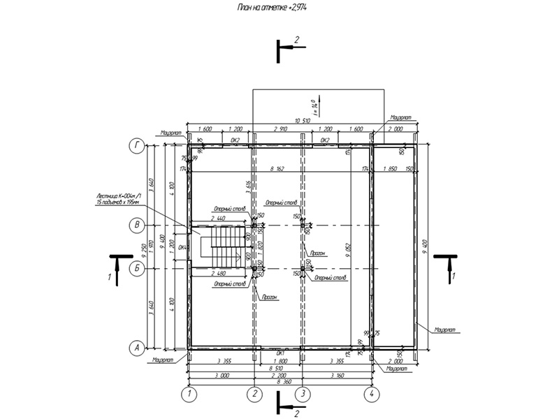
Фундамент — монолитный ж/б
Несущие стены — SIP панель (174мм)
Покрытие — битумная или металочерепица
Наружная отделка — штукатурка, облицовочная плитка, природный камень





